
RESTAURANT PROJECT
Costa Churrascaria Brazilian Steakhouse | Semester 4
Client: Town of Innisfil
Location : 3722 Fairway Road
Innisfil, ON
Size: 3423 sqft
​
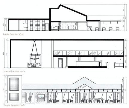
The goal of this project was to renovate a dilapidated commercial kitchen and dining room of a conference centre. The overall concept for this Brazilian restaurant comes from nature. Elements such as foliage, natural wood tones and the landscapes of Brazil will be at the forefront of this design. Through glazing and organic lines the geometry of the space can relate to the exterior and create an overall welcoming environment for guests. The natural curvature and organic lines of these elements will be highlighted and will work together to act as the inspiration to create a sophisticated center for meetings, meals and gatherings. Key features of this restaurant include a large community bar, custom translucent marble dropped ceiling with indirect lighting, and magnificent views of the lake.


Interior Section
AutoCad

Presentation Board
Exterior Elevation
Microsoft Office
AutoCad


AutoCad

Photoshop

